Описание
Производственно-складской комплекс — надежный партнер вашего бизнеса. Новейшие технологии, современное оснащение и профессиональная управляющая компания обеспечат комфорт и эффективность работы.

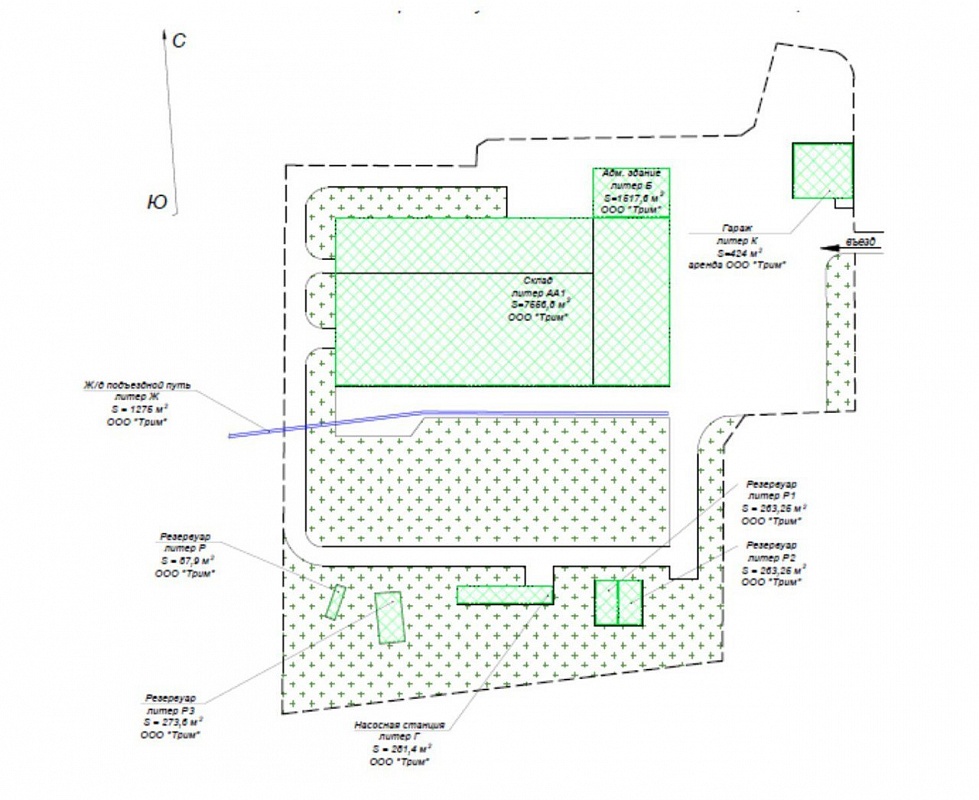
Расположение
Производственно-складской комплекс располагается на Саратова в черте города непосредственно на наименее загруженной трассе — шоссе. Уникальное месторасположение логистического парка и непосредственная близость к транспортным магистралям обеспечивает быстрый доступ к любой части Москвы.

Успейте купить!
Склад
освободился!

Назначить просмотр
10 000 м2
Отопление
Пожарная сигнализация
Система пожаротушения
по запросу
Получить презентацию складского комплекса
Основные характеристики складского комплекса
Удобная локация
Мезонин
Бесшовный пол
Антипылевое покрытие
Выравнивающие площадки
Уплотнительные контуры
Парковка
Система пожаротушения
Пожарная сигнализация
Офисные помещения
Современные телекоммуникации
Контроль доступа
Видеонаблюдение
Система безопасности
Кросс-доки

Дарья Соколова
Менеджер по продаже